Thermador Built-In Electric Oven SC301 Timer Repair

What is the timer/clock part number for the Thermador SC301 Built-In Electric Oven?

Timer part number 492067 for Thermador SC301

The SC301 Built-In Electric Oven uses timer part number 492067.

Do you have a failed Thermador SC301 control panel? Click here:

Request Appliance Timer Service

We can repair or replace your faulty Thermador SC301 timer.

SC301 are also sometimes referred to using these Alternative Names/Model numbers

Bosch SC301 Built-In Electric Oven, SC301T

SC301 Schematic and Wiring Diagrams

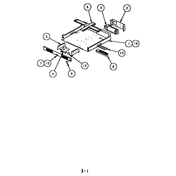
Oven assembly Parts diagram
SC301 Built-In Electric Oven Oven assembly Parts diagram
Back, side and trim Parts diagram
SC301 Built-In Electric Oven Back, side and trim Parts diagram
Convection motor assembly Parts diagram
SC301 Built-In Electric Oven Convection motor assembly Parts diagram
Module lamp assembly Parts diagram
SC301 Built-In Electric Oven Module lamp assembly Parts diagram
Top plenum control module Parts diagram
SC301 Built-In Electric Oven Top plenum control module Parts diagram
Mid plenum, 27 diagram
SC301 Built-In Electric Oven Mid plenum, 27 diagram
Oven module, non-convection 27 diagram
SC301 Built-In Electric Oven Oven module, non-convection 27 diagram
Oven module, convection 27 diagram
SC301 Built-In Electric Oven Oven module, convection 27 diagram
Base module 27 diagram
SC301 Built-In Electric Oven Base module 27 diagram
Door components (s272t) (sc272t) (scd272t) Parts diagram
SC301 Built-In Electric Oven Door components (s272t) (sc272t) (scd272t) Parts diagram
Door components (s301t) (s302t) (sc301t) (sc302t) (scd302t) Parts diagram
SC301 Built-In Electric Oven Door components (s301t) (s302t) (sc301t) (sc302t) (scd302t) Parts diagram
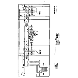
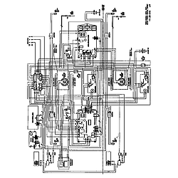
Wiring diagram Parts diagram
SC301 Built-In Electric Oven Wiring diagram Parts diagram
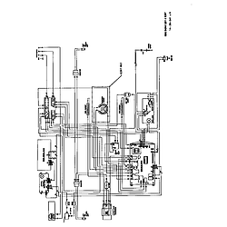
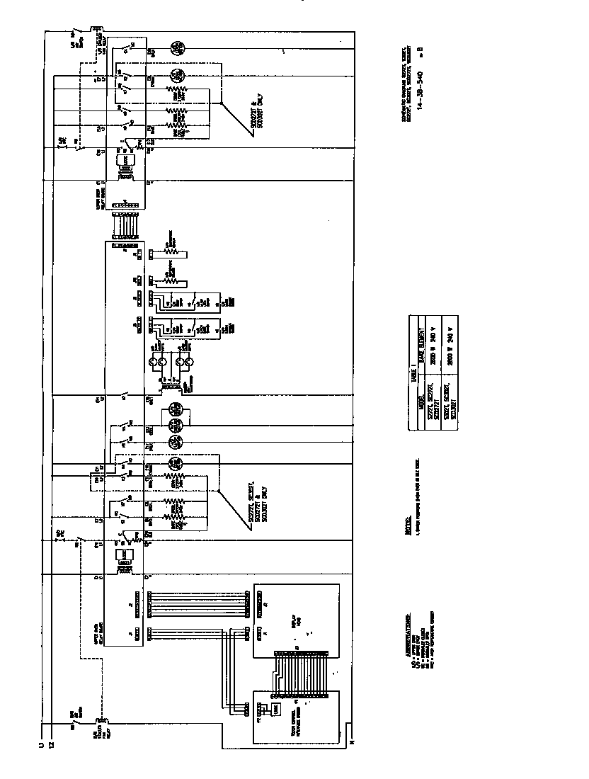
Schematic diagram Parts diagram
SC301 Built-In Electric Oven Schematic diagram Parts diagram
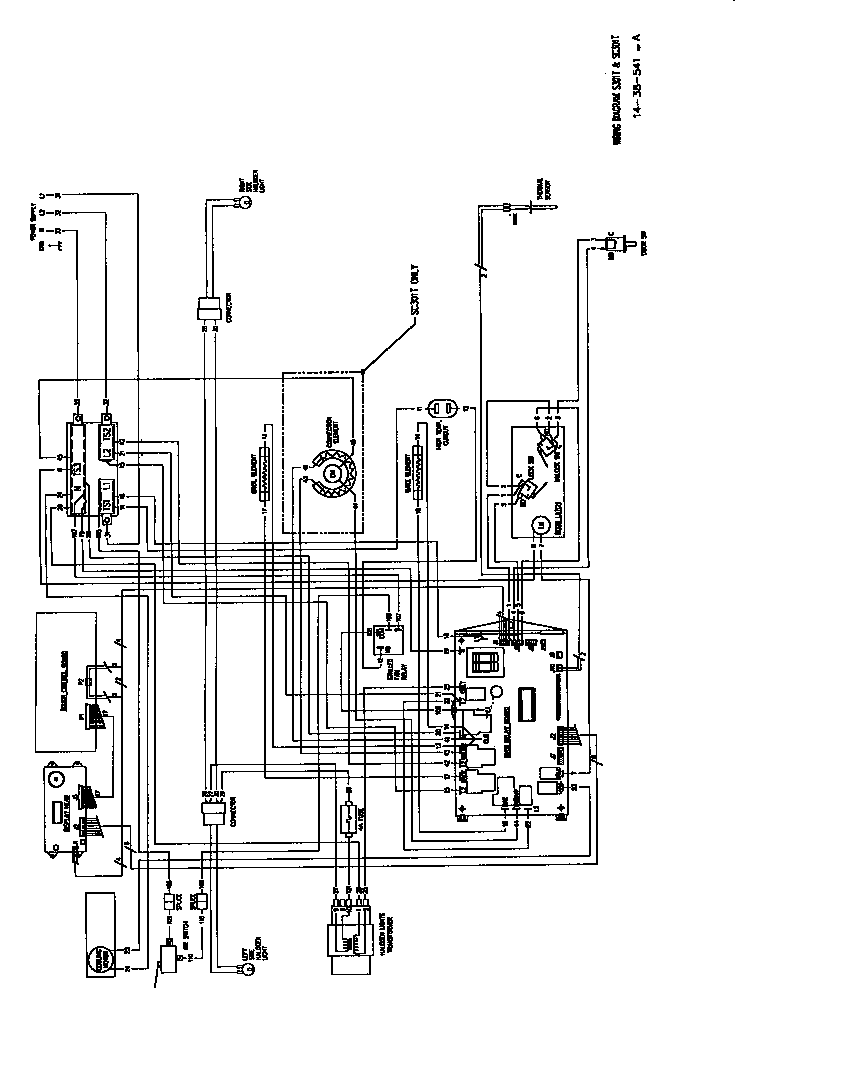
Wiring diagram, s301t and sc301t (s301t) (s302t) (sc301t) (sc302t) (scd302t) Parts diagram
SC301 Built-In Electric Oven Wiring diagram, s301t and sc301t (s301t) (s302t) (sc301t) (sc302t) (scd302t) Parts diagram
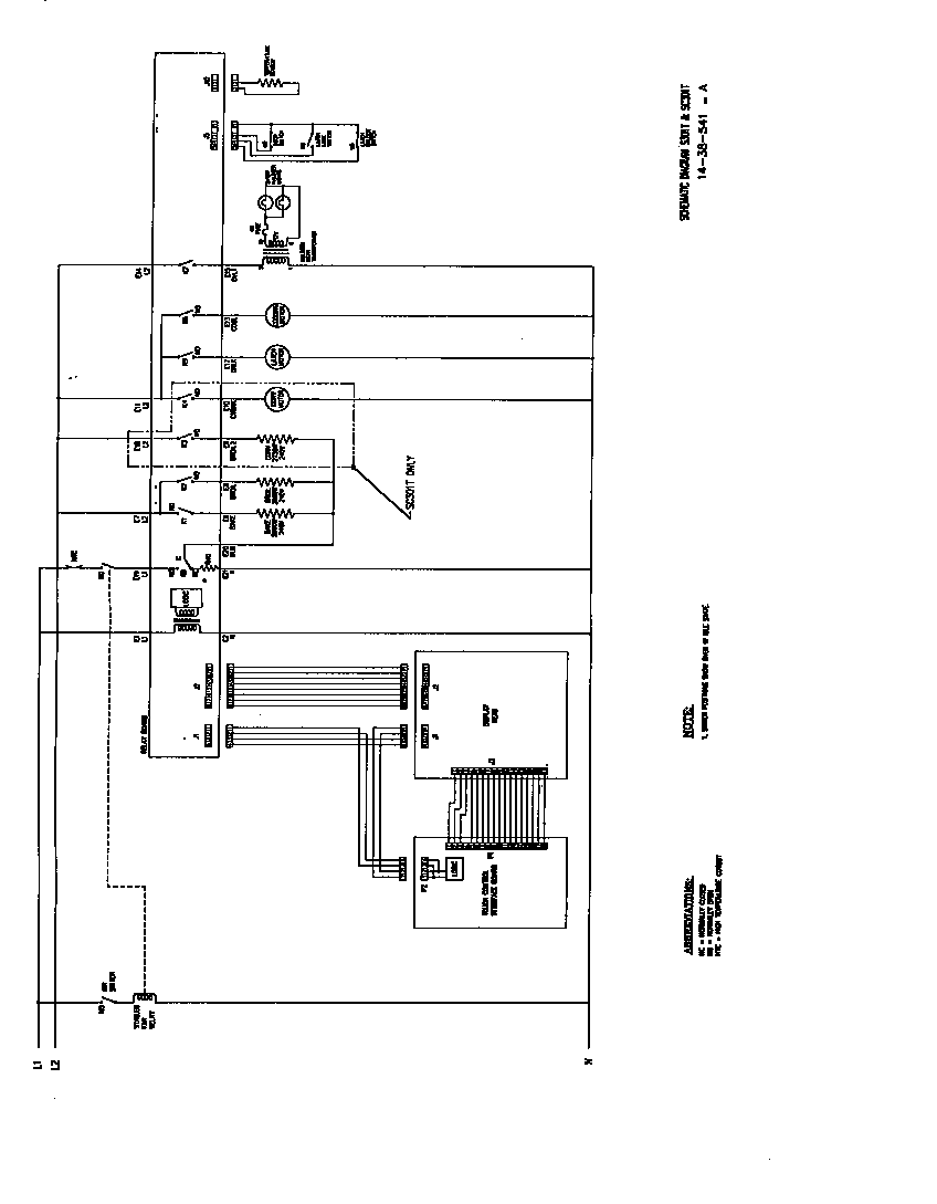
Schematic diagram, s301t and sc301t (s301t) (s302t) (sc301t) (sc302t) (scd302t) Parts diagram
SC301 Built-In Electric Oven Schematic diagram, s301t and sc301t (s301t) (s302t) (sc301t) (sc302t) (scd302t) Parts diagram

Recent Service Requests

CityProblem DescriptionResolution
Verdun, QuebecOn the timer board, the LED's are completely darkRepaired
MArblehead, MassachusettsDisplay is unreadably dim. Possibly not displaying anything at all. Oven works. Buttons beep, heat happens.Repaired
West Vancouver, British Columbia1, faded read out
2. oven controls stopped functioning
Awaiting receipt of timer
MARKHAM, OntarioDisplay numbers have dimmed- hard to readAwaiting receipt of timer
North Vancouver, British ColumbiaDisplay does not work, however, the rest of the oven functions normally. With the display not working, we cannot set temperature or perform other functions.Repaired
CALGARY, Albertano power to the cooling fanRepaired
FREDERICTON, New BrunswickOVEN WILL NOT WORK-WHEN WE PRESS BAKE A BAKE INDICATOR COMES ON FOR 2-3SECONDS BUT OVEN DOES NOT WORK.Timer inspected, no repairs necessary
brooklyn, New YorkWe can no longer use broil or convection roast, and the oven no longer heats and cooks as well as it once did when the timer was working. Again, the part we need is THERMADOR SC301TB single oven relay & display board kit 00702450.
I found a repairman who says he can fix it if you have the part, now discontinued, in stock
Awaiting receipt of timer
Danville, CaliforniaThere is no LED display. All of the functions of the oven work perfectly.Awaiting receipt of timer
BATON ROUGE, LouisianaDISPLAY WILL NO LITE UPRepaired
Mount Hope, OntarioDisplay was hard to see then stopped working all together. The buttons on touch control still work, just no display.Repaired
Edmonton, AlbertaThe LED Clock on the display is not working (it faded off a few months back). The wall oven works perfectly, there is just no display for time or temperature anymore.

Model number SC301TW. Ser# 980030125
Repaired
East Troy, WisconsinThermador wall oven. Touch pad seems to work / beeps when most "buttons" touched. Blank screen / clock with ?burn mark top left corner inside glass. Oven won't turn on. Oven light turns on when door open. Fan works. Repairman said clock timer is broken and part no longer available.Repaired
Adams, TennesseeThe display on the front is so dim you can't see the numbers.Repaired
Calgary, AlbertaOven stopped heating on bake cycle during operation. Broil function had been working intermittently for some time. Bake and Broil no longer heat and display shows 100F when these cycles are selected.

The touchpad is being replaced independent of this repair due to an F7 error that occurred during diagnosis of above problem.
Repaired
Amarillo, TexasVacuum Fluorescent Display gradually dimming to unreadable over the last few months. All other oven functions normal.Repaired
Adams, TennesseeThe display on the front is so dim you can't see the numbers.Repaired
Richmond, VirginiaDim DsiplayRepaired
Brownsville, TexasPanel started fading and finally went dark. The oven works.Repaired
Lihue, HawaiiTimer has no back light works but can't see displayRepaired

Common problems for Thermador Built-In Electric Oven SC301 Timer Repair

Are you encountering a similar problem as them? Contact us now and we will try to help you fix your SC301 timer-related problem.
I have a single oven sc301. It is about 4.5 yrs old. The oven temp and clock light are unreadbly dim. What can I do to fix this?
I have a Thermador SC301. It doesn't preheat on Bake beyond 175 degrees. On Convection Bake it preheats to the selected temp and seems to functions OK.
Thermadore sc301 no heat on any mode, bake, broil, convection... Replaced relay board and control board but still having same problem. Hear clicking sound and getting power from "bake" terminal, but no power from "dlb" terminal. At times between some of the clicking I read about 60V from ground to neutral. Is there a short somewhere possibly causing this, or is the board bad again?
Got an F7 error on Thermador sc301. How do I get it to turn off
Our Thermador SC301 oven door will not close completely and the light stays on. I don't see any adjustments for the door. Is there a fix? Is it the gasket?
I have a Thermador SC301 Wall Unit Oven. I ran the self clean - which seemed to run ok for a while - then screen went black. I flipped breaker and let the unit cool down completely. I reset breaker - set clock etc. Tried "bake" on not action. The display shows 100F and bake - but the element does not heat. I took the element out and examined it - no visible problems. Tried convection and broil - they display ok but there is no heat.
I just moved into a new apartment and there's a Thermador SC301 TS. The oven top works just fine, but nothing happens when we press touchpad to start the oven. We get a small beep when we press "off", but otherwise nothing. This is my first time with a thermador. Is there some trick I'm missing? Thanks, Alan, Brooklyn, NY
I have a SC301 wall oven, display is now blank and recently the unit no longer heats up. what are options to fix?
I have an Aficio 1085 Copier. About half way through a run of 500 double sided copies the copier suddenly stopped and displayed the error code SC301. I've turned off the machine and turned it back on and the same code shows immediately. I've gotten around the error code and into the service menu but as soon as I exit the service menu it errors immediately again. When looking at the drum after the error occurs, the entire surface of the drum is covered in toner. The book tells me there are three possible causes for SC301; poor charge corona unit connection, charge/bias/grid power pack defective, dirty or worn charge corona wire. How do I test to figure out which one is the cause of the SC301 error code?
Dim LED on SC301 Thermador repairing dim or blank LED clock
Self-clean turns off after 5 minutes with F2 error message The self clean feature of my Thermador built-in oven, model sc301, turns off after about 5 minutes with an F2 error message. I have not used the self-clean in a few years - I don't bake too often.
The other day the broiler on a Thermador electric oven got left on with the door closed. Next thing I know the oven was beeping non-stop and non of the pressure sensitive button controls would function. I called the company and they told me to trip the circuit breaker, leave it off for 5 minutes and try again. Now the controls work, but when I turn on the oven, only the fan runs and it does not heat up. What's the likely problem and can I order parts and repair it myself?
SAVIN 2055 WITH AN SC301 CODE
I have a Thermador SC301 wall oven and the display has faded out. Thermador says I need to replace the whole control unit ($500 for the part!) Any cheaper fix?