Frigidaire Electric Range PGLEF387CS2 Timer Repair

What is the timer/clock part number for the Frigidaire PGLEF387CS2 Electric Range?

Timer part number 318019820 for Frigidaire PGLEF387CS2

The PGLEF387CS2 Electric Range uses timer part number 318019820.

Do you have a failed Frigidaire PGLEF387CS2 control panel? Click here:

Request Appliance Timer Service

We can repair or replace your faulty Frigidaire PGLEF387CS2 timer.

PGLEF387CS2 are also sometimes referred to using these Alternative Names/Model numbers

Electrolux PGLEF387CS2 Electric Range, PGLEF387CS4, PGLEF387CS5

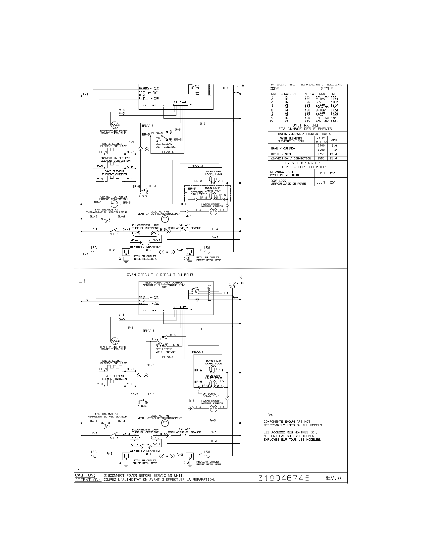
PGLEF387CS2 Schematic and Wiring Diagrams

Backguard Parts diagram
PGLEF387CS2 Electric Range Backguard Parts diagram
Body Parts diagram
PGLEF387CS2 Electric Range Body Parts diagram
Top/drawer Parts diagram
PGLEF387CS2 Electric Range Top/drawer Parts diagram
Door Parts diagram
PGLEF387CS2 Electric Range Door Parts diagram
Wiring diagram Parts diagram
PGLEF387CS2 Electric Range Wiring diagram Parts diagram

Recent Service Requests

CityProblem DescriptionResolution
Pointe Claire, QuebecTimer screen indicates oven on and shows 70F . Element never gets red. Temperature never goes up.Repaired
Sept-Iles, QuébecSome buttons does not workingAwaiting receipt of timer
Chateauguay, QuébecRepaired