Electrolux Wall Oven E30EW75DSS1 Timer Repair

What is the timer/clock part number for the Electrolux E30EW75DSS1 Wall Oven?

Timer part number 31627220 for Electrolux E30EW75DSS1

The E30EW75DSS1 Wall Oven uses timer part number 31627220.

Do you have a failed Electrolux E30EW75DSS1 control panel? Click here:

Request Appliance Timer Service

We can repair or replace your faulty Electrolux E30EW75DSS1 timer.

E30EW75DSS1 Schematic and Wiring Diagrams

Control panel Parts diagram
E30EW75DSS1 Wall Oven Control panel Parts diagram
Body Parts diagram
E30EW75DSS1 Wall Oven Body Parts diagram
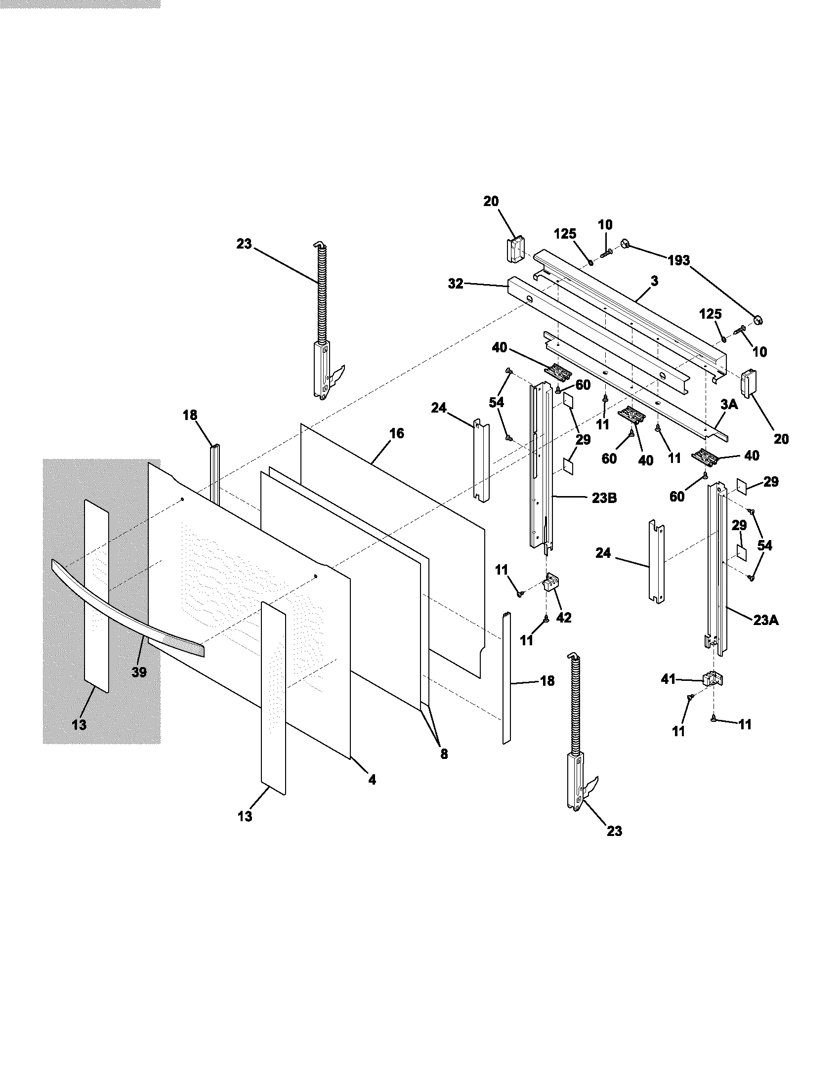
Door Parts diagram
E30EW75DSS1 Wall Oven Door Parts diagram
Wiring diagram Parts diagram
E30EW75DSS1 Wall Oven Wiring diagram Parts diagram

Recent Service Requests

CityProblem DescriptionResolution
Albuquerque, New MexicoTouch screen lights are on but do not function. Also there no error codes or time being displayed. Area where they are normally is black.Awaiting receipt of timer
SUMMERLAND, British ColumbiaI can set the oven/broiler/or roast and press start, the convection fan starts but no elements get hot. I checked the resistance on all elements and all are ok. I checked the power line ins to the board and both the red and black measure 120vac to ground so safety relay must be ok. Perhaps a board relay isn't letting the current through to the elements or something else on the board?Repaired

Common problems for Electrolux Wall Oven E30EW75DSS1 Timer Repair

Are you encountering a similar problem as them? Contact us now and we will try to help you fix your E30EW75DSS1 timer-related problem.
This dryer is less than 6 years old and lightly used. After running 5 min on auto dry, the top gets very hot and the dryer shuts off. After 10 mins. it can be restarted and completes the cycle normally, with cooldown. On restart, clock advances normally and the top remains cool. Also shuts off on timed dry, after a longer time Disconnecting from exhaust ducting makes no difference Internal air passages were cleaned and vacuumed Exhaust air flow seems normal Motor was pristine clean; does not hum or growl Drum rotation does not drag, no noises Fan is secure on shaft T-stat on blower housing has been replaced No air blockage around dryer, not in a new location. Suggestions appreciated.
My dryer just stooped heating up enough to dry clothes. The start button stopped working and so I just have to turn the dial for any cycle and it goes on but the cycles run continuously without completely drying. Silver heat shield inside gets hot but I don't feel air blowing. It spins just fine. This is just over 18 months old any suggestions?
This dryer runs but will not heat. I was having a problem with the start switch so I replaced that. Still no heat. There are about 4 different parts that I know of that might cause this problem: (1) main clock (2) heat sensor (3)thermostat (4) igniter and maybe more that I don't know about. How can I test these parts to find out which one is bad? To buy one part at a time to find out which one is bad would put me in the poor-house and I don't have that kind of money to spend. Any help you could provide would be greatly appreciated.
I have an electrolux oven and the door has 3 panes of glass. i need to clean between them. how can I separate the glass panes on the door